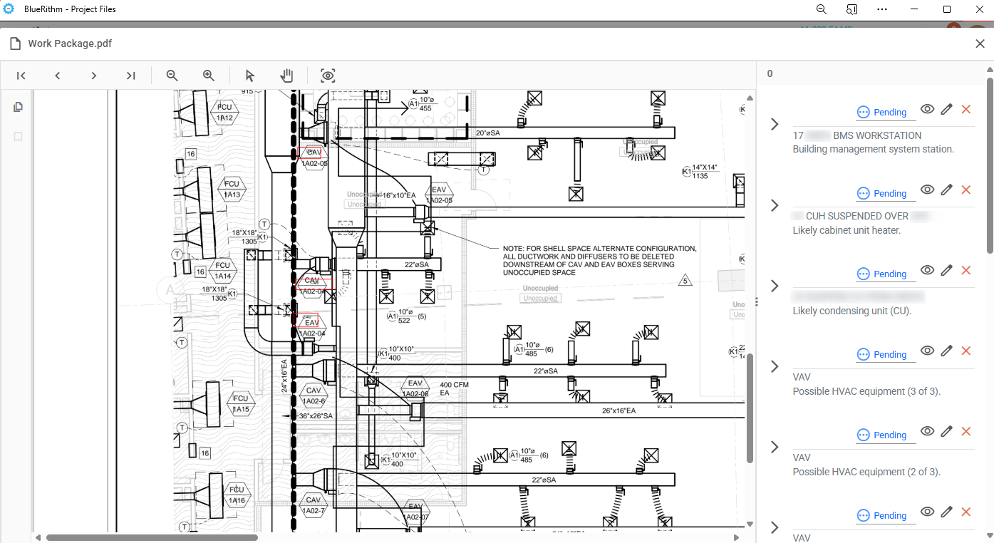
AI-powered Drawing Scans
We continue to reimagine what’s possible in commissioning software with cutting-edge AI and automation. We’re thrilled to announce one of the big features that’s coming soon: AI-powered Drawing Scans. You’ll be able to just upload your project drawings and let Bluerithm automatically detect equipment, create equipment lists, and instantly import them into your projects. No more manual equipment counting and entry—just simple, automated project setup workflows.

Automated Functional Test Writing
We’re also enhancing our powerful and successful Automated Test Writing tool. It will tackle all project sequences of operation at once, rather than handling one equipment or system type at a time.


We’ve been heads down and quiet for months now, building the next generation of commissioning software, and we’re excited to get these updates into your hands. Stay tuned!


